天气预报
无障碍浏览
热门搜索:
黄骅港
生物医药
项目签约
吞吐量
您现在的位置:
首页
>
查公开
>
规划建设
液化空气(沧州)有限公司输气管道项目工程规划批前公示
日期:2015-03-20 阅读次数: 保护视力色:
【字体:
大
中
小
】
打印
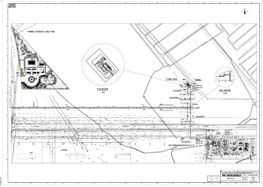
项目名称:液化空气(沧州)有限公司输气管道工程
建设单位:液化空气(沧州)有限公司
项目位置:渤海新区化工管廊
项目概况:本项目从液化空气厂区内氮气、氧气管道上分别接出一条DN300管线,在厂区西北角入地,经埋地敷设穿越景观河及南疏港路,引入中宝镍业计量调压站,两条管线均长1400m。两条埋地管道在南疏港路北侧60m处设等径三通,引出地面上化工管廊向西架空敷设,至管廊尽头后敷设至达力普公司计量调压站,两条管线架空段均长4100m,埋地段均长100m。
液化空气(沧州)有限公司已向我局申请办理工程规划许可手续,现面向社会进行公示。请广大人民群众及相关利害关系人就该项目规划内容提出意见和建议。
公示日期:
2015年3月20日至2015年3月30日。
联系电话:
0317--8553709
[关闭窗口]